Avril
Avril Cosmétiques
Design d'espace
Architecture d'intérieur
3D
Une boutique Avril Cosmétiques pensée pour Deauville.
Demande
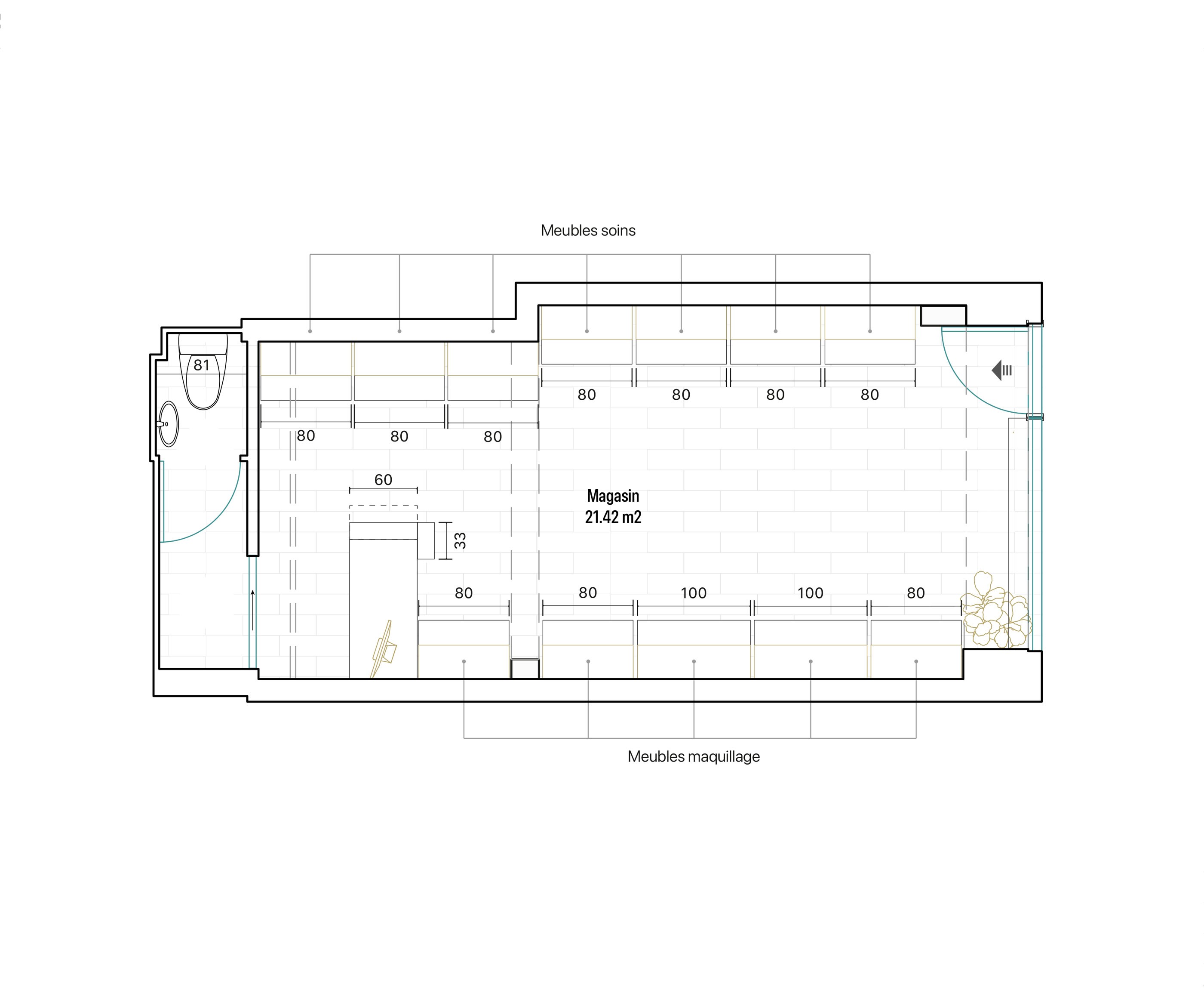
Avril souhaitait implanter une nouvelle boutique en franchise à Deauville, dans un local situé sur un axe stratégique et très fréquenté.
L’objectif : adapter le concept architectural national d’Avril à un espace compact de 20 m², tout en respectant scrupuleusement le cahier des charges de la marque, matériaux, mobiliers, circulation, exigences techniques et en intégrant subtilement l’univers de la station balnéaire.
Le client attendait :
une implantation fluide malgré les contraintes du lieu,
un respect total de l’identité Avril (naturalité, simplicité, douceur),
un aménagement capable d’accueillir l’ensemble des gammes produits,
une ambiance douce et élégante en écho à Deauville,
un projet clé en main, piloté du plan jusqu’au mobilier.
Solutions
Nous avons adapté le concept architectural d’Avril à un espace de 30 m² en optimisant la circulation, le mobilier et l’implantation des produits. Le projet respecte les matériaux et codes de la marque, tout en intégrant les contraintes du lieu : structure, accès, flux et visibilité. Plans techniques, zoning, mobiliers et rendus 3D ont permis d’obtenir une boutique cohérente, lisible et prête à ouvrir.










